HOME
FEATURES
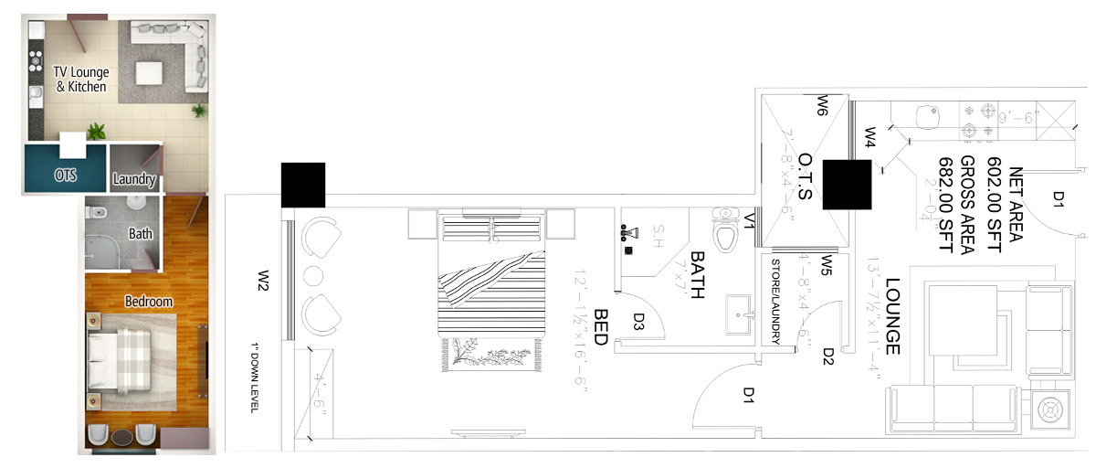
FLOOR PLAN
PRICE PLAN
Commercial Plan
Residential
GALLERY
CONTACT US
1 Bedroom Price Details
Area 682 SQFT
BACK